Проектирование
Капитальный ремонт и модернизация котельной в Московской области
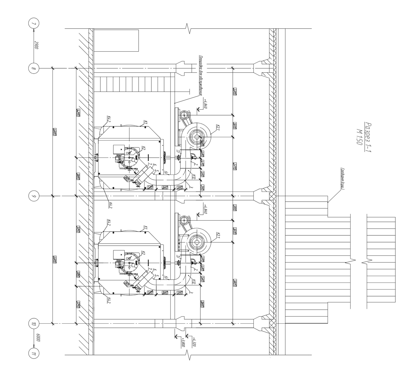
На участке, расположенном в Московской области, г. Дмитров, выполняется капитальный ремонт и техническое перевооружение котельной. Исходная мощность котельной составляла 15 Гкал/час, и она будет модернизирована до 70 Гкал/час.
Характеристики участка:
• Категория земель: Промышленность, энергетика, транспорт, связь, информатика, оборона.
• Кадастровый номер участка: 50:04:0011102:611.
• Обременения отсутствуют.
На территории участка имеются:
• Котельная (1-2 этажа).
• Металлическое нежилое здание.
• Площадка для осмотра и ремонта автомобилей.
Территориальные особенности:
• Естественный рельеф не нарушен.
• Участок граничит с промышленными участками на севере, юге и западе, а на востоке примыкает к улице Профессиональной.
Работы при капитальном ремонте включают:
• Организацию стока поверхностных вод.
• Устройство отмосток.
• Исключение утечек из водонесущих коммуникаций.
Особенности грунта:
• Нормативная глубина сезонного промерзания насыпного песчаного грунта (ИГЭ-1) - 1,7 м.
• Грунт относится к непучинистым грунтам.
Зонирование участка:
• Зона перед главным входом.
• Зона существующей дымовой трубы.
• Зона резервного топлива.
Характеристики участка:
• Категория земель: Промышленность, энергетика, транспорт, связь, информатика, оборона.
• Кадастровый номер участка: 50:04:0011102:611.
• Обременения отсутствуют.
На территории участка имеются:
• Котельная (1-2 этажа).
• Металлическое нежилое здание.
• Площадка для осмотра и ремонта автомобилей.
Территориальные особенности:
• Естественный рельеф не нарушен.
• Участок граничит с промышленными участками на севере, юге и западе, а на востоке примыкает к улице Профессиональной.
Работы при капитальном ремонте включают:
• Организацию стока поверхностных вод.
• Устройство отмосток.
• Исключение утечек из водонесущих коммуникаций.
Особенности грунта:
• Нормативная глубина сезонного промерзания насыпного песчаного грунта (ИГЭ-1) - 1,7 м.
• Грунт относится к непучинистым грунтам.
Зонирование участка:
• Зона перед главным входом.
• Зона существующей дымовой трубы.
• Зона резервного топлива.