Проектирование
Приход Св.Розария. Центр духовного воспитания
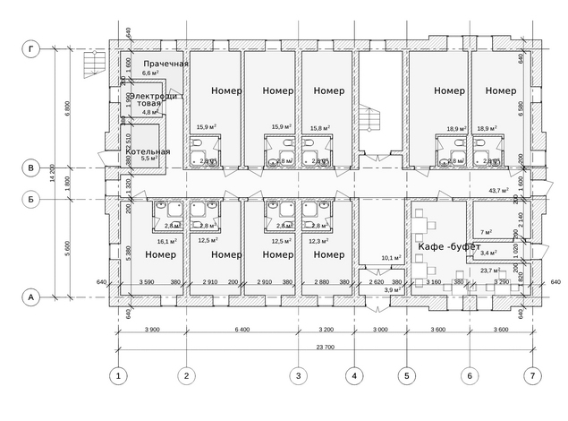
Проектируемое здание представляет собой двухэтажный объем с размерами в плане 23,50х14,54 метра по осям. Здание двухэтажное с техническим подпольем. Кровля шатровая.
На первом этаже (отм. 0,000) предлагается разместить небольшой холл при входе, кухню с обеденным залом, девять молельных комнат, прачечную, помещение уборочного инвентаря, электрощитовую и котельную.
На втором этаже (отм. +3.300) – одиннадцать молельных комнат, холл при входе с лестницы, администрация, помещение для хранения грязного и чистого постельного белья.
Минимальная площадь молельных комнат составляет 14,93 м2, максимальная 21,14 м2. Здание предусмотрено для временного размещения 30 прихожан.
Обеденный зал площадью 15,52 м2рассчитан на 9 посадочных мест. На кухне предусмотрено размещение небольшого холодильника и микроволновой печи.
Архитектура фасадов проектируемого здания выполнена в стилизованных готических формах, что позволяет заключить здание в ансамбль сооружений расположенных на территории костела.
Фасады здания облицованы лицевым красным кирпичом, отделка цоколя из белого камня. Выступающие декоративные элементы оштукатуриваются с дальнейшей окраской в белый цвет.
На первом этаже (отм. 0,000) предлагается разместить небольшой холл при входе, кухню с обеденным залом, девять молельных комнат, прачечную, помещение уборочного инвентаря, электрощитовую и котельную.
На втором этаже (отм. +3.300) – одиннадцать молельных комнат, холл при входе с лестницы, администрация, помещение для хранения грязного и чистого постельного белья.
Минимальная площадь молельных комнат составляет 14,93 м2, максимальная 21,14 м2. Здание предусмотрено для временного размещения 30 прихожан.
Обеденный зал площадью 15,52 м2рассчитан на 9 посадочных мест. На кухне предусмотрено размещение небольшого холодильника и микроволновой печи.
Архитектура фасадов проектируемого здания выполнена в стилизованных готических формах, что позволяет заключить здание в ансамбль сооружений расположенных на территории костела.
Фасады здания облицованы лицевым красным кирпичом, отделка цоколя из белого камня. Выступающие декоративные элементы оштукатуриваются с дальнейшей окраской в белый цвет.
